LANZAMIENTO
En blanco
Antofagasta

Vista Parque Inglés

https://nucleos.cl/content/uploads/2025/09/VistaPI-1290x500-1.png
https://nucleos.cl/content/uploads/2025/09/VistaPI-1000x400-1.png

Avance de obra

etapa 1
Lanzamiento
Completada
etapa 2
Venta en blanco
En proceso
etapa 3
Venta en verde
Pendiente
etapa 4
Piloto
Pendiente
etapa 5
Próxima entrega
Pendiente
etapa 6
Entrega
Pendiente

Características

Salón Comunitario

Bicicleteros

Plantas

Explora nuestras plantas y tipologías disponibles y encuentra el hogar que mejor se ajusta a tus necesidades.
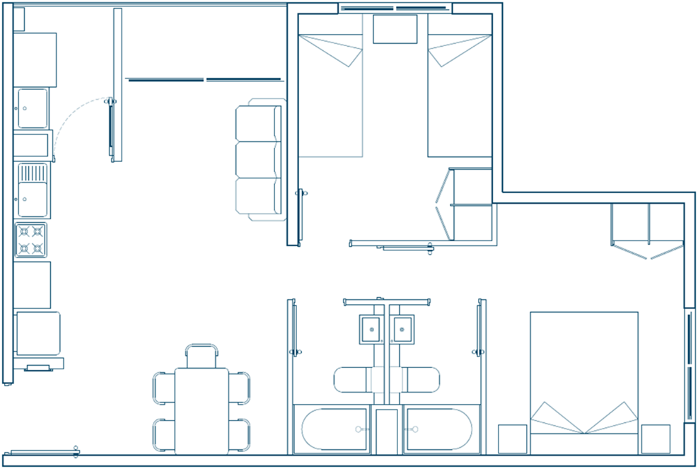
  • Tipología 3D-1B

    Desde
    4.130 UF
    Superficie total
    57,42m²
    Superficie útil
    52,29m²
    Terraza
    2,35m²
    Logia
    2,78m²

    *Las superficies son aproximadas. La superficie útil corresponde a la superficie inferior.

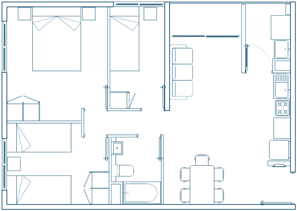
  • Tipología 2D-2B

    Desde
    3.920 UF
    Superficie total
    54,87m²
    Superficie útil
    48,67m²
    Terraza
    2,42m²
    Logia
    2,78m²

    *Las superficies son aproximadas. La superficie útil corresponde a la superficie inferior.

  • Tipología - 2D-1B

    Desde
    3.630 UF
    Superficie total
    48,35m²
    Superficie útil
    43,43m²
    Terraza
    2,14m²
    Logia
    2,78m²

    *Las superficies son aproximadas. La superficie útil corresponde a la superficie inferior.

    Ubicación Sala de Ventas

    Arturo Prat 218, Local 3, Antofagasta
    Horario de Sala de ventas
    Lun a Vie 10:00 a 14:00 hrs / 15:30 a 18:00 hrs

    Conectividad

    Se emplaza en un sector residencial de la zona sur alta de Antofagasta.

    Servicios

    Ubicación privilegiada con acceso a clínicas, colegios, comercio y excelentes conexiones viales.

    Conectividad

    Se emplaza en un sector residencial de la zona sur alta de Antofagasta.

    Servicios

    Ubicación privilegiada con acceso a clínicas, colegios, comercio y excelentes conexiones viales.

    Preguntas frecuentes

    Revisa las preguntas que más nos hacen nuestros clientes y conoce más detalles sobre nuestros servicios y proyectos disponibles.
    Ir al Centro de Ayuda
    ¿Cuáles son los métodos de pago?

    Transferencia bancaria, tarjetas de crédito y débito, cheques o vale vista. No se recibe dinero en efectivo en ninguna de nuestras salas de venta.

    ¿Qué documentos necesito para iniciar el proceso de compra?

    Cédula de identidad vigente y si compras con crédito: en primera instancia necesitas las últimas 6 liquidaciones de sueldo, 12 últimas cotizaciones de AFP y contrato de trabajo vigente.

    ¿Puedo comprar una bodega o estacionamiento adicional?

    Solo pueden comprar los propietarios de departamentos y depende del stock disponible en el proyecto, debes consultar directamente en sala de ventas la disponibilidad de bodegas o estacionamiento.

    ¿Qué garantías se ofrecen después de la compra?

    En Chile, las garantías inmobiliarias están establecidas en la Ley General de Urbanismo y Construcción (LGUC). Estas garantías son:

    • Daños estructurales: 10 años
    • Instalaciones: 5 años
    • Terminaciones: 3 años

    Otros proyectos